1703 Fieldstone Crescent Ottawa, Ontario K1C 1R6

3 卧室 3 浴室 1500 - 2000 sqft
壁炉 中央空调 风热取暖

$715,000

Welcome to this beautifully maintained Costain-built home in the established and family-friendly community of Convent Glen in Ottawa's east end. Tucked away on a quiet street, this 3-bedroom, 1.5-bath property offers the perfect blend of comfort, functionality, and location-ideal for families, first-time buyers, and professionals alike. Step inside to a bright, open-concept main floor designed for modern living. The fully updated white kitchen (2026) features new cabinetry, elegant marble countertops, and ceramic tile flooring-creating a clean, timeless space for cooking and entertaining. Seamless flow connects the kitchen to the dining area, living room, and additional eating space, offering versatility for both everyday life and hosting. Upstairs, the spacious primary bedroom includes a walk-in closet and private ensuite bath, while two well-proportioned secondary bedrooms offer ample closet space-perfect for growing families or home office flexibility. Outside, the fully fenced yard is thoughtfully landscaped and meticulously cared for by long-term owners, providing a private retreat for relaxing or entertaining. Basement has no Crawlspace, fully excavated under the main floor of this split level. Convent Glen is known for its exceptional lifestyle convenience. Enjoy quick access to public transit and the LRT, making commuting to downtown Ottawa simple and efficient. Families will appreciate proximity to highly regarded schools, nearby parks, and the Ottawa River pathways. Everyday essentials are just minutes away with Place D'Orléans shopping, grocery stores, restaurants, and recreation facilities all within easy reach. A turnkey home in a mature, amenity-rich neighbourhood-this is an opportunity to invest in both lifestyle and location. (id:44758)

房源概要

MLS® Number X13035296
房源类型 民宅
社区名字 2006 - Convent Glen South
附近的便利设施 公共交通
总车位 5

详 情

浴室 3
地上卧房 3
总卧房 3
Age 51 To 99 Years
公寓设施 Fireplace(s)
赠送家电包括 Garage Door Opener Remote(s), Water Meter, 洗碗机, 烘干机, Water Heater, 炉子, 洗衣机, 冰箱
地下室进展 已完成
地下室类型 Full (unfinished)
施工种类 独立屋
Construction Style Split Level Sidesplit
空调 中央空调
外墙 铝壁板, 砖
壁炉
Fireplace Total 1
地基类型 混凝土
客人卫生间(不包含洗浴) 2
供暖方式 天然气
供暖类型 压力热风
内部尺寸 1500 - 2000 Sqft
类型 独立屋
设备间 市政供水

车 位

附加车库
Garage

土地

英亩数
围栏类型 Fenced Yard
土地便利设施 公共交通
污水道 Sanitary Sewer
土地深度 110 Ft
土地宽度 50 Ft
不规则大小 50 X 110 Ft

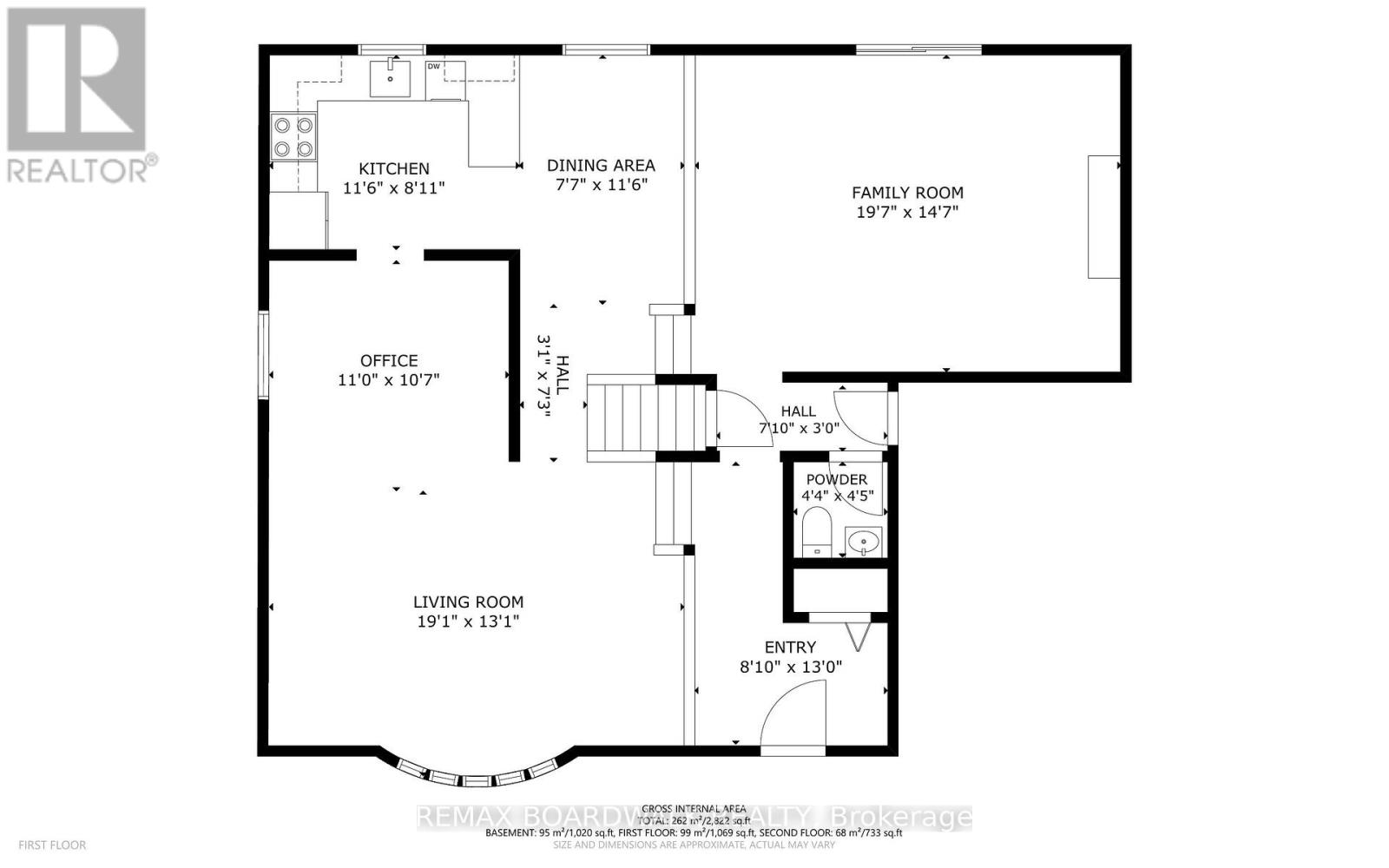
房 间

楼 层 类 型 面 积
二楼 浴室 1.52 m x 3.05 m
二楼 主卧 4.52 m x 3.66 m
二楼 浴室 1.5 m x 1.5 m
二楼 第二卧房 3.05 m x 5.5 m
二楼 第三卧房 2.9 m x 4.57 m
一楼 厨房 3.54 m x 2.7 m
一楼 Eating Area 2.34 m x 3.5 m
一楼 客厅 5.79 m x 4 m
一楼 餐厅 3.35 m x 3.2 m
一楼 家庭房 5.94 m x 4.42 m
一楼 浴室 1.34 m x 1.5 m

设备间

有线电视 已安装
配电箱 已安装
污水道 已安装

https://www.realtor.ca/real-estate/29646325/1703-fieldstone-crescent-ottawa-2006-convent-glen-south