2 卧室
2 浴室
700 - 1100 sqft
平房
中央空调, 换气器
风热取暖
$569,900
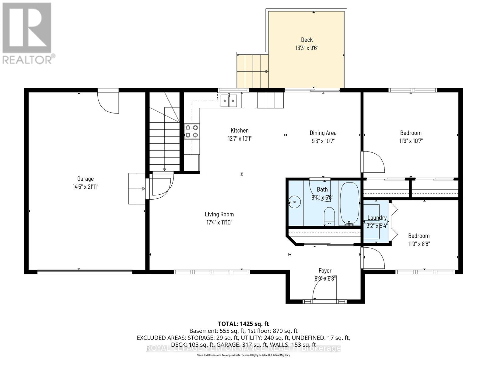
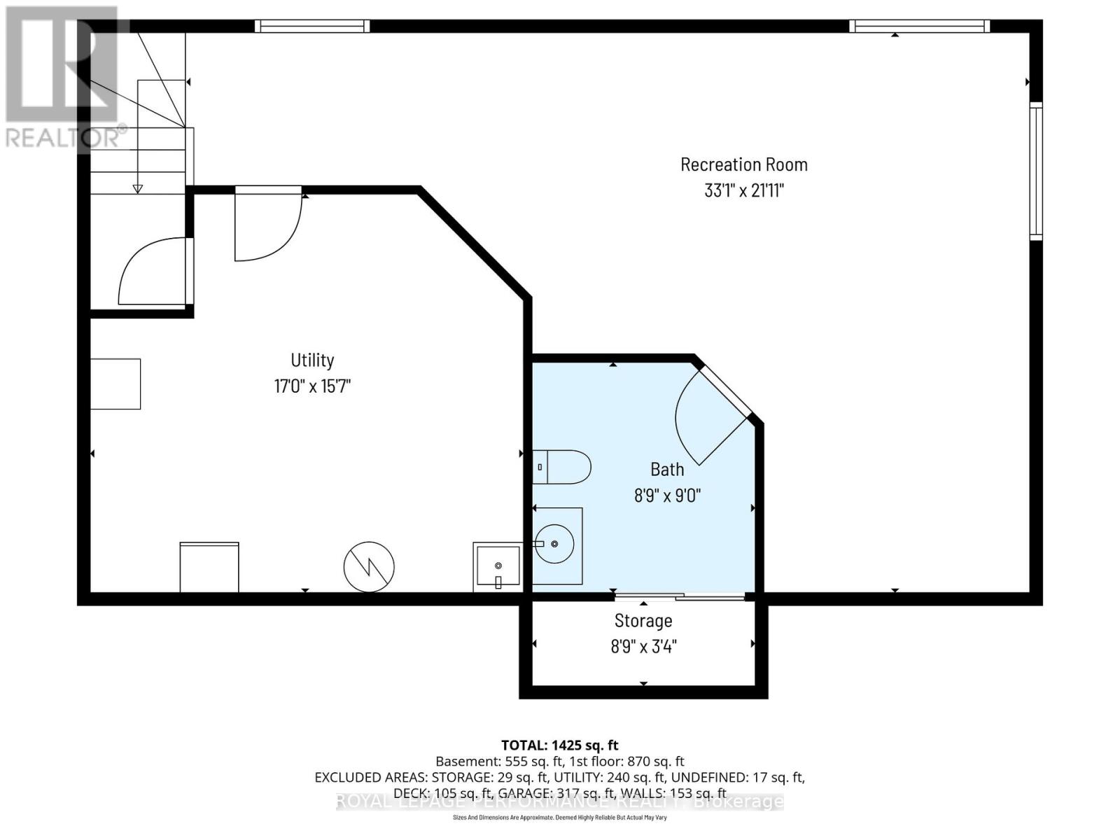
Welcome to 71 Faucher, a beautifully maintained bungalow in the heart of Casselman. The main floor features hardwood flooring throughout and a spacious entryway that opens into a bright, sun-filled living room. The kitchen offers a light and airy feel with plenty of cabinet space, while the adjacent dining area provides direct access to a large deck-perfect for entertaining or summer BBQs. The primary bedroom is generously sized and includes two separate closets. A second bedroom, a convenient laundry, and a 3-piece bathroom complete the main level. The partially finished basement already includes a bathroom and offers endless potential-whether you envision a third bedroom, additional living space, home gym, or playroom. With an attached garage and a large backyard, this property is well suited for all types of lifestyles. Ideally located just minutes from local shops and the highway, you'll enjoy both convenience and the tranquility of a quiet street. Book your showing today! (id:44758)
房源概要
|
MLS® Number
|
X13036646 |
|
房源类型
|
民宅 |
|
社区名字
|
604 - Casselman |
|
特征
|
无地毯 |
|
总车位
|
5 |
|
结构
|
Deck, 棚 |
详 情
|
浴室
|
2 |
|
地上卧房
|
2 |
|
总卧房
|
2 |
|
赠送家电包括
|
Garage Door Opener Remote(s), 洗碗机, 烘干机, 炉子, 洗衣机, 冰箱 |
|
建筑风格
|
平房 |
|
地下室进展
|
部分完成 |
|
地下室类型
|
全部完成 |
|
施工种类
|
独立屋 |
|
空调
|
Central Air Conditioning, 换气机 |
|
外墙
|
砖, 乙烯基壁板 |
|
地基类型
|
混凝土浇筑 |
|
客人卫生间(不包含洗浴)
|
1 |
|
供暖方式
|
天然气 |
|
供暖类型
|
压力热风 |
|
储存空间
|
1 |
|
内部尺寸
|
700 - 1100 Sqft |
|
类型
|
独立屋 |
|
设备间
|
市政供水 |
车 位
土地
|
英亩数
|
无 |
|
污水道
|
Sanitary Sewer |
|
土地深度
|
100 Ft ,1 In |
|
土地宽度
|
68 Ft ,10 In |
|
不规则大小
|
68.9 X 100.1 Ft |
设备间
https://www.realtor.ca/real-estate/29648104/71-faucher-boulevard-casselman-604-casselman