3 卧室
3 浴室
1500 - 2000 sqft
None
风热取暖
$734,000
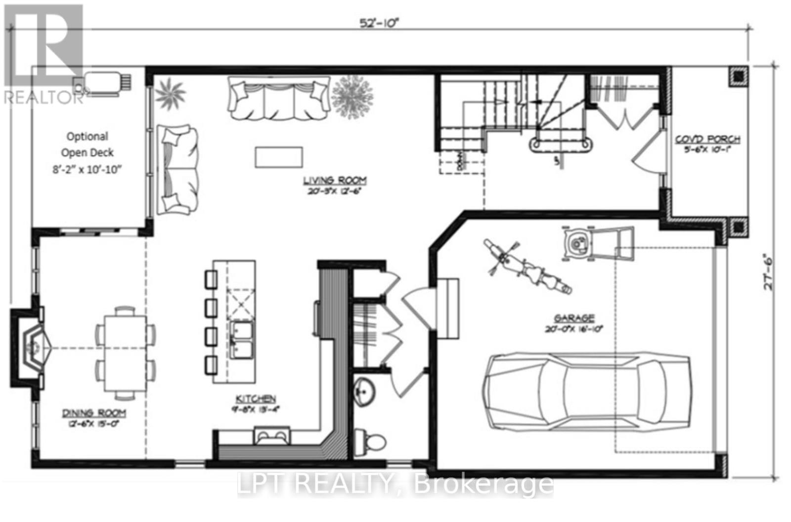
OPEN HOUSE Sunday March 8th 2:00pm - 4:00pm AT 63 Chateauguay Street, Embrun Introducing the Modern Sofia, a thoughtfully designed 2-storey home offering 1,703 square feet of comfortable and efficient living space. With 3 bedrooms, 2.5 bathrooms, and a spacious 1.5-car garage, this home is ideal for modern families or first-time buyers looking for a smart, stylish layout. The main floor welcomes you with a bright living room that flows into a side-set kitchen and dining area, creating a defined yet connected living space. Just off the garage, you'll find a convenient powder room perfect for guests and day-to-day practicality. Upstairs, the primary suite offers a peaceful escape, complete with a private ensuite bathroom. The Modern Sofia blends functional living with clean, contemporary design for a space you'll love to come home to. Constructed by Leclair Homes, a trusted family-owned builder known for exceeding Canadian Builders Standards. Specializing in custom homes, two-storeys, bungalows, semi-detached, and now offering fully legal secondary dwellings with rental potential in mind, Leclair Homes brings detail-driven craftsmanship and long-term value to every project. (id:44758)
房源概要
|
MLS® Number
|
X12853778 |
|
房源类型
|
民宅 |
|
社区名字
|
602 - Embrun |
|
总车位
|
5 |
详 情
|
浴室
|
3 |
|
地上卧房
|
3 |
|
总卧房
|
3 |
|
Age
|
New Building |
|
赠送家电包括
|
Water Heater - Tankless |
|
地下室进展
|
已完成 |
|
地下室类型
|
Full (unfinished) |
|
施工种类
|
独立屋 |
|
空调
|
没有 |
|
外墙
|
乙烯基壁板, 石 |
|
地基类型
|
混凝土 |
|
客人卫生间(不包含洗浴)
|
1 |
|
供暖方式
|
天然气 |
|
供暖类型
|
压力热风 |
|
储存空间
|
2 |
|
内部尺寸
|
1500 - 2000 Sqft |
|
类型
|
独立屋 |
|
设备间
|
市政供水 |
车 位
土地
|
英亩数
|
无 |
|
污水道
|
Sanitary Sewer |
|
土地深度
|
110 Ft |
|
土地宽度
|
45 Ft |
|
不规则大小
|
45 X 110 Ft ; Corner Lot |
|
规划描述
|
住宅 |
房 间
| 楼 层 |
类 型 |
长 度 |
宽 度 |
面 积 |
|
二楼 |
主卧 |
4.27 m |
3.66 m |
4.27 m x 3.66 m |
|
二楼 |
第二卧房 |
3.05 m |
3.66 m |
3.05 m x 3.66 m |
|
二楼 |
第三卧房 |
3.05 m |
3.05 m |
3.05 m x 3.05 m |
|
一楼 |
厨房 |
2.74 m |
2.84 m |
2.74 m x 2.84 m |
|
一楼 |
客厅 |
6.32 m |
4.42 m |
6.32 m x 4.42 m |
|
一楼 |
餐厅 |
1.93 m |
2.44 m |
1.93 m x 2.44 m |
设备间
https://www.realtor.ca/real-estate/29437303/72-chateauguay-street-russell-602-embrun