3 卧室
3 浴室
1500 - 2000 sqft
None, 换气器
风热取暖
$559,900管理费,Parcel of Tied Land
$82.77 每月
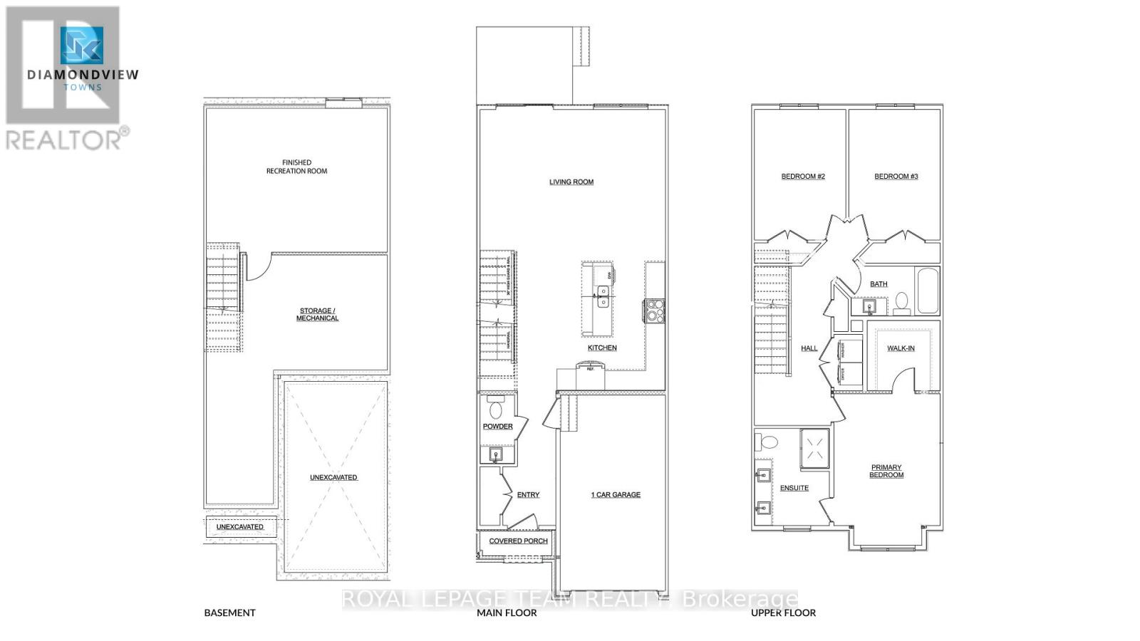
NEW MODEL HOME available for viewing! SEASONAL SPECIAL: $10,000 DESIGN CENTRE BONUS & SMOOTH CEILINGS Included for a limited time! Executive town radiating curb appeal & exquisite design, on an extra deep lot. Their high-end, standard features set them apart. Exterior: Genuine wood siding on front exterior w/ metal roof accent, wood inspired garage door, arched entryway, 10' x 8' deck off rear + eavesthroughing! Inside: Finished recroom incl. in price along w/ 9' ceilings & high-end textured vinyl floors on main, designer kitchen w/ huge centre island, extended height cabinetry, backsplash & quartz counters, pot lights & soft-close cabinetry throughout! The 2nd floor laundry adds convenience, while the large primary walk-in closet delights. Rare community amenities incl. walking trails, 1st class community center w/ sport courts (pickleball & basketball), playground, covered picnic area & washrooms! Lower property taxes & water bills make this locale even more appealing. Experience community, comfort & rural charm mere minutes from the quaint village of Carp & HWY for easy access to Ottawa's urban areas. Whether for yourself or as an investment, Sheldon Creek Homes in Diamondview Estates offers a truly exceptional opportunity! Don't miss out - Sheldon Creek Homes, the newest addition to Diamondview Estates! With 20 years of residential experience in Orangeville, ON, their presence in Carp marks an exciting new chapter of modern living in rural Ottawa. WOW - AMAZING VALUE! Act Now! Photos shown are of a model home and may include upgrades not included in the base price. (id:44758)
房源概要
|
MLS® Number
|
X13037562 |
|
房源类型
|
民宅 |
|
社区名字
|
9104 - Huntley Ward (South East) |
|
附近的便利设施
|
公园 |
|
社区特征
|
社区活动中心 |
|
设备类型
|
热水器 - Tankless |
|
特征
|
Lane |
|
总车位
|
3 |
|
租赁设备类型
|
热水器 - Tankless |
|
结构
|
Deck |
详 情
|
浴室
|
3 |
|
地上卧房
|
3 |
|
总卧房
|
3 |
|
Age
|
New Building |
|
赠送家电包括
|
Hood 电扇 |
|
地下室进展
|
部分完成 |
|
地下室类型
|
N/a (partially Finished) |
|
施工种类
|
附加的 |
|
空调
|
None, 换气机 |
|
外墙
|
砖 |
|
地基类型
|
混凝土 |
|
客人卫生间(不包含洗浴)
|
1 |
|
供暖方式
|
天然气 |
|
供暖类型
|
压力热风 |
|
储存空间
|
2 |
|
内部尺寸
|
1500 - 2000 Sqft |
|
类型
|
联排别墅 |
|
设备间
|
市政供水 |
车 位
土地
|
英亩数
|
无 |
|
土地便利设施
|
公园 |
|
土地深度
|
114 Ft ,10 In |
|
土地宽度
|
20 Ft |
|
不规则大小
|
20 X 114.9 Ft ; 0 |
|
规划描述
|
T1 (357r) |
房 间
| 楼 层 |
类 型 |
长 度 |
宽 度 |
面 积 |
|
二楼 |
洗衣房 |
|
|
Measurements not available |
|
二楼 |
主卧 |
4.08 m |
3.35 m |
4.08 m x 3.35 m |
|
二楼 |
浴室 |
3.02 m |
2.38 m |
3.02 m x 2.38 m |
|
二楼 |
第二卧房 |
4.03 m |
2.92 m |
4.03 m x 2.92 m |
|
二楼 |
第三卧房 |
4.03 m |
2.89 m |
4.03 m x 2.89 m |
|
二楼 |
浴室 |
2.81 m |
1.54 m |
2.81 m x 1.54 m |
|
Lower Level |
娱乐,游戏房 |
5.86 m |
4.72 m |
5.86 m x 4.72 m |
|
Lower Level |
设备间 |
|
|
Measurements not available |
|
一楼 |
门厅 |
|
|
Measurements not available |
|
一楼 |
客厅 |
5.91 m |
4.36 m |
5.91 m x 4.36 m |
|
一楼 |
厨房 |
4.79 m |
4.36 m |
4.79 m x 4.36 m |
|
一楼 |
浴室 |
|
|
Measurements not available |
设备间
|
有线电视
|
可用 |
|
配电箱
|
已安装 |
|
Natural Gas Available
|
可用 |
https://www.realtor.ca/real-estate/29649023/752-tailslide-private-ottawa-9104-huntley-ward-south-east