800 Ford Road Montague, Ontario K7H 3C3

8 ac
面积

$1,690,000

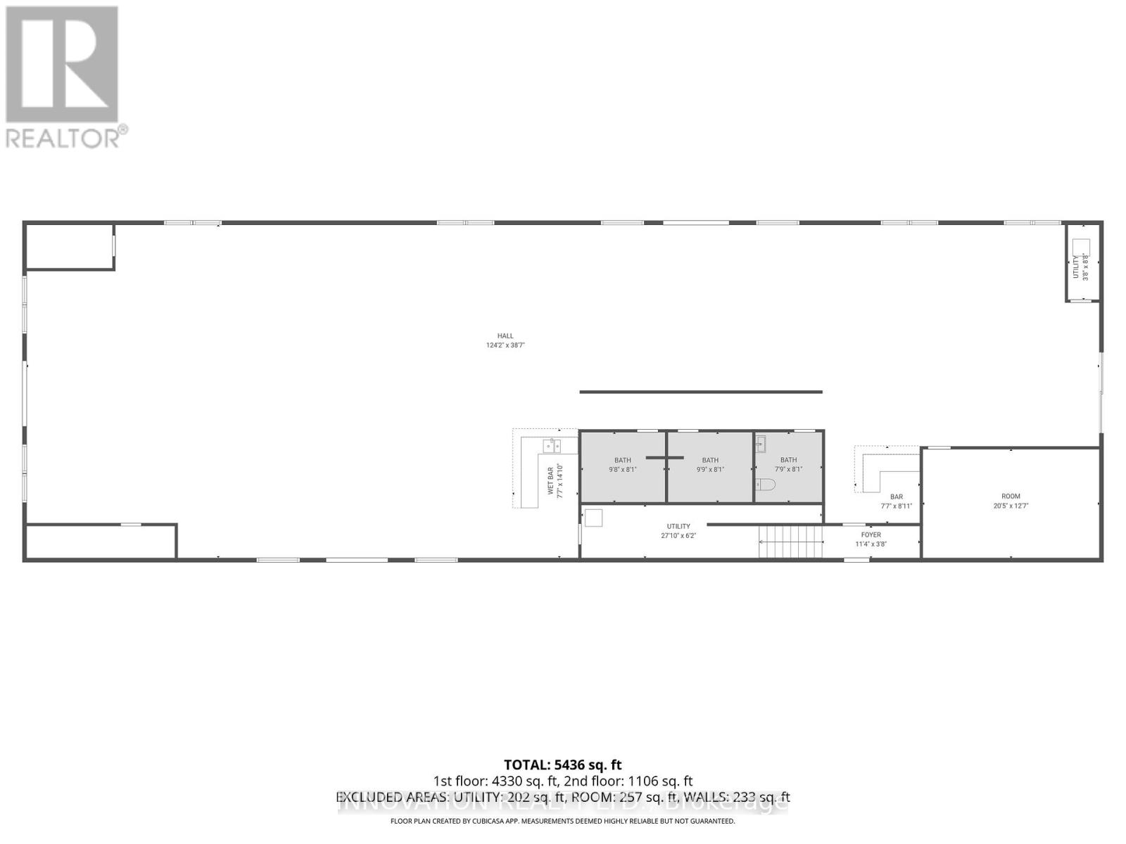
Set on 7.6 acres in the Township of Montague, this unique commercial property for sale offers exceptional versatility just 30 minutes from Ottawa and only 20 minutes to Perth and Carleton Place. This impressive 5,000 sq ft retrofitted barn blends rustic charm with modern functionality, making it ideal for a wide range of uses. Zoned rural with additional permissions for a greenhouse operation or place of assembly, this property is perfectly suited for entrepreneurs, investors, or those looking to establish an event venue, agricultural business, cannabis cultivation, flower production farm, dog kennel or home business close to Ottawa. The building is serviced with natural gas and includes a 2 bedroom apartment above with open concept floor plan and 3 piece bathroom. At the rear of the property are two existing concrete pads originally planned for greenhouses. Surrounded by open countryside, this Smiths Falls commercial property delivers privacy, flexibility, and opportunity while remaining within easy reach of the City of Ottawa. This property offers unlimited potential in a growing and accessible location! Reach out today for more info! (id:44758)

房源概要

MLS® Number X13042414
房源类型 Agriculture
社区名字 902 - Montague Twp
Farm Type Farm

详 情

Age New Building
内部尺寸 8 Ac
类型 Unknown
设备间 Drilled Well

土地

英亩数
土地深度 599 Ft
土地宽度 473 Ft
不规则大小 7.69
Size Total 7.69 Ac
规划描述 Ru / Ru2 / Ru-16-h (place Of Assembly)

https://www.realtor.ca/real-estate/29654533/800-ford-road-montague-902-montague-twp