2 卧室
2 浴室
1100 - 1500 sqft
平房
None
风热取暖
$595,000
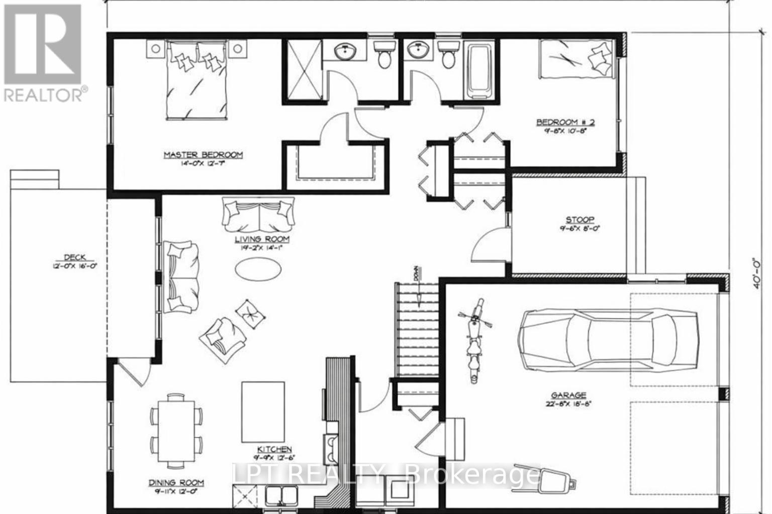
FULL HST REBATE INCLUDED IN LISTING PRICE! OPEN HOUSE Sunday April 26th 2:00pm - 4:00pm 63 Chateauguay Street, Embrun. Introducing the Modern Audrey a sleek and stylish bungalow offering 1,315 square feet of thoughtfully designed living space. With 2 bedrooms and 2 full bathrooms, this home is ideal for those seeking one-level living without compromising on comfort or elegance. The open-concept layout creates a seamless flow between living, dining, and kitchen areas, perfect for everyday living and entertaining. The primary suite is a true retreat, complete with its own ensuite bathroom for added privacy and relaxation. A spacious 2-car garage adds functionality and convenience, making this model perfect for downsizers, first-time buyers, or anyone looking for low-maintenance living with a modern edge. Constructed by Leclair Homes, a trusted family-owned builder known for exceeding Canadian Builders Standards. Specializing in custom homes, two-storeys, bungalows, semi-detached, and now offering fully legal secondary dwellings with rental potential in mind, Leclair Homes brings detail-driven craftsmanship and long-term value to every project. (id:44758)
Open House
此属性有开放式房屋!
开始于:
2:00 pm
结束于:
4:00 pm
房源概要
|
MLS® Number
|
X12853766 |
|
房源类型
|
民宅 |
|
社区名字
|
616 - Limoges |
|
总车位
|
6 |
详 情
|
浴室
|
2 |
|
地上卧房
|
2 |
|
总卧房
|
2 |
|
Age
|
New Building |
|
赠送家电包括
|
Water Heater |
|
建筑风格
|
平房 |
|
地下室进展
|
已完成 |
|
地下室类型
|
Full (unfinished) |
|
施工种类
|
独立屋 |
|
空调
|
没有 |
|
外墙
|
石, 乙烯基壁板 |
|
地基类型
|
混凝土 |
|
供暖方式
|
天然气 |
|
供暖类型
|
压力热风 |
|
储存空间
|
1 |
|
内部尺寸
|
1100 - 1500 Sqft |
|
类型
|
独立屋 |
|
设备间
|
市政供水 |
车 位
土地
|
英亩数
|
无 |
|
污水道
|
Sanitary Sewer |
|
土地深度
|
109 Ft |
|
土地宽度
|
49 Ft |
|
不规则大小
|
49 X 109 Ft |
|
规划描述
|
住宅 |
房 间
| 楼 层 |
类 型 |
长 度 |
宽 度 |
面 积 |
|
一楼 |
厨房 |
3 m |
3.8 m |
3 m x 3.8 m |
|
一楼 |
客厅 |
5.8 m |
4.3 m |
5.8 m x 4.3 m |
|
一楼 |
餐厅 |
3 m |
3.7 m |
3 m x 3.7 m |
|
一楼 |
主卧 |
4.3 m |
3.8 m |
4.3 m x 3.8 m |
|
一楼 |
第二卧房 |
3 m |
3.3 m |
3 m x 3.3 m |
设备间
https://www.realtor.ca/real-estate/29437300/940-katia-street-the-nation-616-limoges