3 卧室
3 浴室
1500 - 2000 sqft
None
风热取暖
$558,990
Welcome to The Nova End II, your new home sweet home in the vibrant community of Oxford Village, Kemptville. This charming 3-bedroom, 2.5-bathroom townhome features a look-out basement, over-looking greenspace and is an Energy Star certified end-unit. As you approach, the quaint front porch welcomes you into a warm and inviting foyer, complete with a closet and powder room. The main level boasts 9-foot ceilings and elegant hardwood flooring, leading to a convenient mudroom with garage access and additional closet space. At the heart of the home, the kitchen shines with upgraded quartz countertops, a stylish ceramic backsplash and just outside, an 7'x4' deck overlooking greenspace with stairs for down to the backyard. Upstairs, you'll find a full bathroom, a linen closet, laundry room, along with three well-appointed bedrooms, with the option to UPGRADE to a 4th bedroom. Enhancing the living space, this townhome includes a partially finished, look-out basement with a versatile recreation room. This property comes with a 7-year Tarion Home Warranty, providing added peace of mind. With excellent shopping, top-rated schools, lush parks, and a variety of outdoor recreational activities, Kemptville offers a vibrant and convenient lifestyle for its residents. Additional Optional Upgrades are available to further personalize your home (chef's kitchen, ensuite bath oasis, finished bathroom in basement, etc). (id:44758)
房源概要
|
MLS® Number
|
X13056088 |
|
房源类型
|
民宅 |
|
社区名字
|
803 - North Grenville Twp (Kemptville South) |
|
总车位
|
2 |
详 情
|
浴室
|
3 |
|
地上卧房
|
3 |
|
总卧房
|
3 |
|
赠送家电包括
|
Water Heater - Tankless, Water Heater, 洗碗机, 炉子, 冰箱 |
|
地下室进展
|
部分完成 |
|
地下室类型
|
全部完成 |
|
施工种类
|
附加的 |
|
空调
|
没有 |
|
外墙
|
乙烯基壁板 |
|
地基类型
|
混凝土浇筑 |
|
客人卫生间(不包含洗浴)
|
1 |
|
供暖方式
|
天然气 |
|
供暖类型
|
压力热风 |
|
储存空间
|
2 |
|
内部尺寸
|
1500 - 2000 Sqft |
|
类型
|
联排别墅 |
|
设备间
|
市政供水 |
车 位
土地
|
英亩数
|
无 |
|
污水道
|
Sanitary Sewer |
|
土地深度
|
100 Ft ,9 In |
|
土地宽度
|
32 Ft ,7 In |
|
不规则大小
|
32.6 X 100.8 Ft |
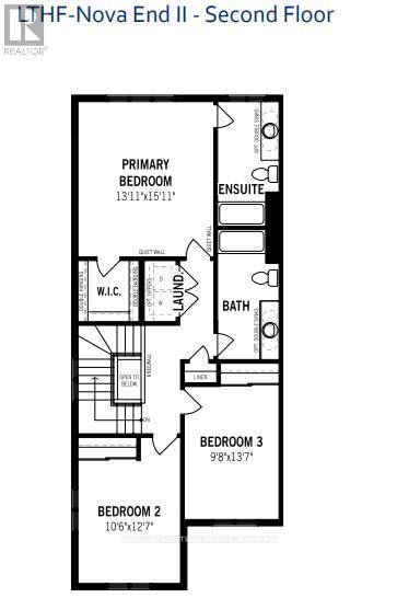
房 间
| 楼 层 |
类 型 |
长 度 |
宽 度 |
面 积 |
|
二楼 |
主卧 |
4.85 m |
4.24 m |
4.85 m x 4.24 m |
|
二楼 |
第二卧房 |
3.84 m |
3.2 m |
3.84 m x 3.2 m |
|
二楼 |
第三卧房 |
4.14 m |
2.95 m |
4.14 m x 2.95 m |
|
地下室 |
娱乐,游戏房 |
5.94 m |
3.63 m |
5.94 m x 3.63 m |
|
一楼 |
大型活动室 |
6.81 m |
3.58 m |
6.81 m x 3.58 m |
|
一楼 |
厨房 |
3.2 m |
2.54 m |
3.2 m x 2.54 m |
|
一楼 |
餐厅 |
2.54 m |
1.98 m |
2.54 m x 1.98 m |
https://www.realtor.ca/real-estate/29670404/lot-3637-de-pencier-drive-north-grenville-803-north-grenville-twp-kemptville-south